Apartment For Rent
$3,030
1 Avalon Way
Plymouth, Massachusetts, United States
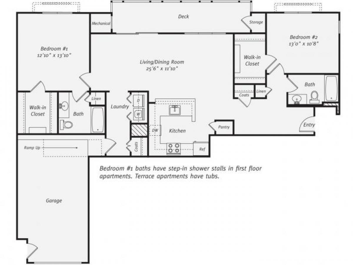
2bd 2ba
Listed By: Listanza Services Group
Listed On: 06/09/2025
Listing ID: GL5297386 View More Details
Description














