Home For Rent
$26
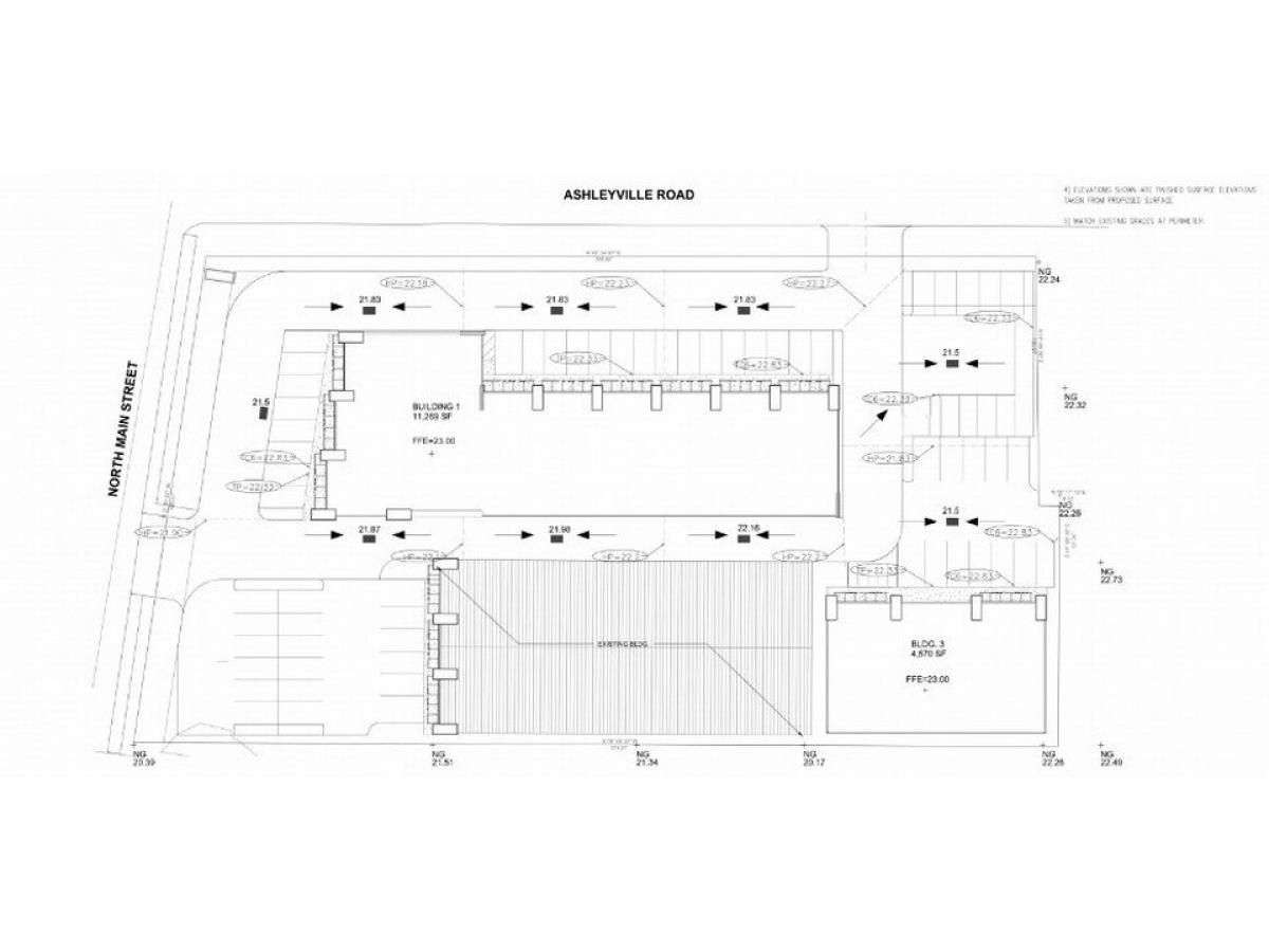
3320 North Main
Baytown, Texas, United States
15,903 sqft
Listed By: Homes & Land Magazine
Listed On: 01/26/2025
Listing ID: GL12018150 View More Details
Description
Situated on the bustling 3320 North Main in Baytown, this upcoming retail center offers unparalleled visibility and accessibility for businesses seeking a high-traffic location. Shell Condition: This retail center is currently under construction and will be delivered in a shell condition, providing tenants with a blank canvas to customize and tailor their space to suit their unique business needs and branding requirements. Key Features: -Flexible Space: Various unit sizes available to accommodate a range of businesses, from boutique shops to larger retail stores. -Ample Parking: Ample parking space ensures convenient access for customers. -High Visibility: Located on a prominent thoroughfare, ensuring maximum exposure to passing traffic. -Modern Design: Designed to meet contemporary standards, with sleek architectural elements and a professional aesthetic. Ideal for: -Retail Stores -Restaurants -Cafes -Offices -Service Providers Don#039;t miss out on this incredible opportunity to establish your business in one of Baytown#039;s most sought-after locations. Contact us today to learn more about leasing opportunities and secure your spot in this exciting new retail center!










