Home For Sale
$484,990
1363 Addison Cir
Commerce Township, Michigan, United States
3bd 2.5ba
Listed By: Realtyww Info
Listed On: 07/24/2025
Listing ID: GL11872780 View More Details
Description
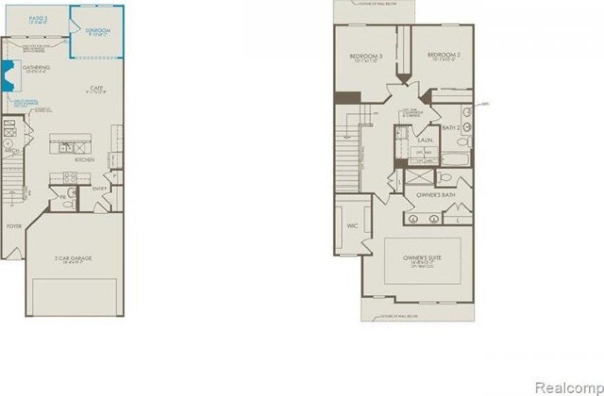
December Move-In! Experience modern luxury living in this new construction townhome, seamlessly blending premium interior finishes with convenient access to M5, shopping and nature parks! The Cascades open floor plan features a gourmet kitchen with quartz countertops and stainless steel appliances, flowing into a spacious living area with a cozy fireplace and an outdoor patio. Upstairs, the primary bedroom includes plenty of room to rest and recharge, a walk-in closet and spa-like en suite bathroom, accompanied by two well-appointed bedrooms down the hall and another full bathroom. The basement offers versatile space for a home office, gym, or entertainment area. Schedule your tour to view this townhome today!For more details:
Listed by: Heather Shaffer













