Home For Sale
$258,000
Barrio Santa Irene - Comarcas de Luján
Lujan, Buenos Aires, Argentina
3bd 2ba 2,000 sqm
Listed By: Properati
Listed On: 06/30/2025
Listing ID: GL1491770
Description
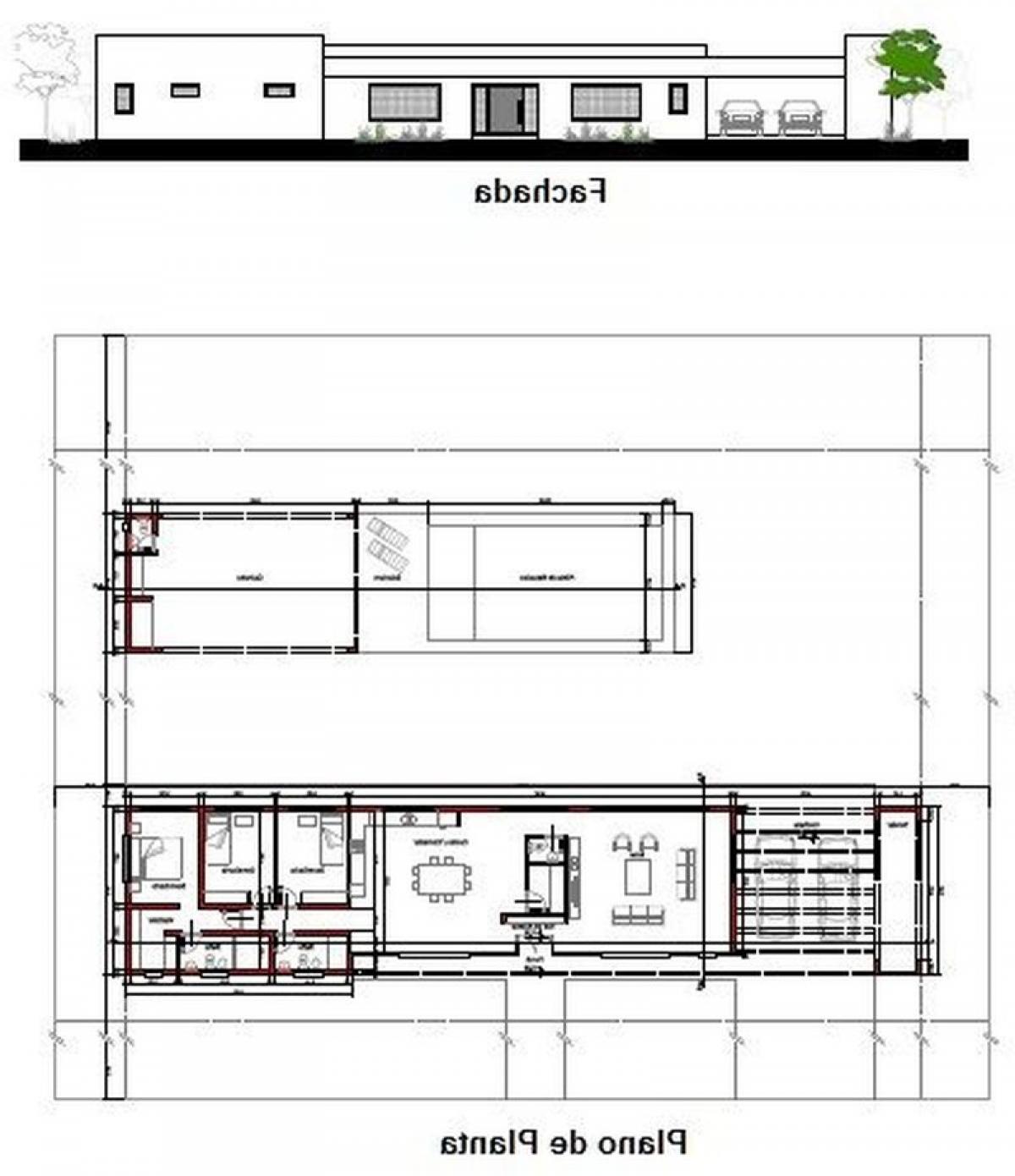
CODIGO: 2016-CV140 ubicado en: Camino 6 km 155 - Publicado por: PROPIEDADES PADRO. SERVICIOS INMOBILIARIOS. El costo es de USD 258000 null. Magnifico vivienda en venta de una planta. Muy funcional y moderna. Para vivienda permanente o final de semana. Con galeria exterior, 3 dormitorios, uno en suite. Escritorio, lavadero, 2 banos y un toilette. Implantada sobre lote de 2.000 m2. Posee atras un espacio verde en comun. Alambrado en todo su perimetro. Garaje semicubierta para 4 vehiculos. Placares con interiores completos. Cortina black out en todas las aberturas. Opcion de venta con mobiliaria incluido. Con pileta con bomba automatica y sistema de filtrado. Revestida con guarda de terminacion. Solarium de hormigon. Muy buena ubicacion dentro del Club de Campo Santa Irene. Se aceptan permutas a analizar por el 50 del valor. Al Barrio se accede desde Camino Provincial 6, a 1000 mts de Entrada Oeste km 59. Tambien se puede entrar desde la Av. Fernandez Beschted de Lujan, altura km. 65 de Entrada Oeste. Entorno junto a la naturaleza a 70 kms de Capital Federal. Region de facil entrada por tener autopistas Panamericana y Entrada Oeste y Rutas Prov 6 y Nac 5. Santa Irene es una de las comunidades del Aldea de Chacras Comarcas de Lujan. Posee 207 lotes de 2.000 m2 cada uno, Club House, Piscina, canchas de tenis, cancha de futbol y quincho de utilizacion comun. Triple cerco perimetral electrificado. Comarcas de Lujan esta compuesto por un total de 5 barrios, ocupando 500 hectareas. Estos estan conectados entre si y los propietarios de un area pueden usar la infraestructura y los servicios comunes del resto del complejo. La urbanizacion tiene 5 areas con capacidad total para mas de 1100 familias. En la infraestructura de este mega encontramos un Colegio Bilingue, Centro de Servicios, gastronomia y turismo. Precio: USD 258.000 Direccion: Camino 6 km. 155, Barrio Santa Irene, Comarcas de Lujan Medidas del terreno: 40 m. de frente x 50 m. De extension area de terreno: 2.000 m2 area cubierta: 185 m2. area semicubierta: 120 m2. Antiguedad: 2015 Cant. de ambientes: 5 + escritorio + lavadero + 2 banos y 1 toilette Estado de la unidad: Magnifico Orientacion: noreste Servicios: Electricidad Alarma: instalacion preparada para colocarla. Aire acondicionado: 5. Uno en cada dormitorio. Otro en Cocina comedor y otro en Living. Calefaccion: por aire. Agua caliente: termotanque electrico de 200 litros de rapida recuperacion. Agua: con bomba extractora y presurizadora en tanque sisterna de 1.000 litros. Piscina de natacion: si. Total: 10 m. x 5m. Con playa humeda de 2m. x 5 m de 15 cm de profundidad + 8 m. x 5 m de 1.10 a 1.60 de profundidad. Cochera: semicubierta para 4 vehiculos Parrilla: No. Esta prevista en el plano para construirla con porvenir quincho. Pisos: microcemento gris plomo en living y cocina comedor. Flotante en dormitorios. Techo: chapa Cielorrasos: durlok. Aberturas: aluminio gris con DVH (Doble vidrio hermetico) Asfalto: No. Calle con mejorado Coordenadas: -34.554059, -59.043171 Monto de Expensas: $ 2.850 a Noviembre 2015. Video: https:// Codigo de la propiedad: CV140 Observaciones: Medidas a manera orientativo. Las superficies son indicativas y no generan vinculo contractual. Propiedades Padro Servicios inmobiliarios Matricula No3668 Tel.: (011) 15- Email: . Publicado a traves de Mapaprop Dormitorios: 3 Banos: 2 Superficie Cubierta: 305 Superficie Total: 2000 Expensas: $2820 Precio por m2: U$S 129 1 Toilettes: Cochera: Aire acondicionado:














