Office For Sale
2,100,000
Geroskipou, Paphos, Cyprus
969 sqm
Listed By: Investgo Llc
Listed On: 03/18/2025
Listing ID: GL11076501
Description
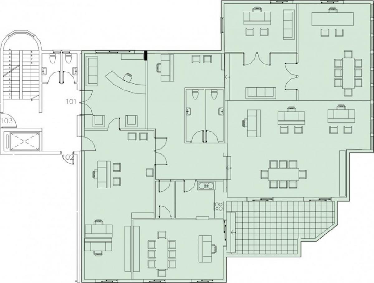
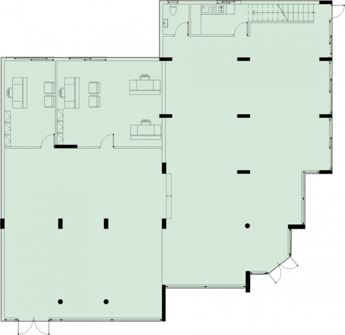
Office for sale in Geroskipou PaphosAt 200 meters from the main highway system, which connects all the cities,airports and ports.Elite eventsa?? 1 minute from the supermarket Plazaa?? 3 minutes from the hospitala?? 1 min. From the Sports Stadiuma?? 3 minutes from state institutions and courtsa?? 10 minutes from Paphos International AirportA modern four-storey building, erected on an individual plot with the existingseparate document of ownership. The property is serviced by a lift andan abundance of parking spaces around the site.The shops on the ground floor are currently rented to the kitchen factory during the last four years and consist of seven separate shops currently in an open-plan configuration with high ceilings, and also include a mezzanine with a total of 468 mA?.Office premises of the ground floor are currently being leased to a construction and development company over the past few years. The total covered area, including a covered balcony of 24 mA?, is 303 mA?.Over the past few years, office space on the second floor is currently being leased to the leading British international tour operator. This space has an area of a??a??198 mA?, as well as additional outdoor balconies with an area of a??a??80 mA?.








