Penthouse For Sale
40,000 MXN
Tabasco, Tabasco, Mexico
3ba 860 sqm
Listed By: Properati
Listed On: 06/30/2025
Listing ID: GL1804467
Description
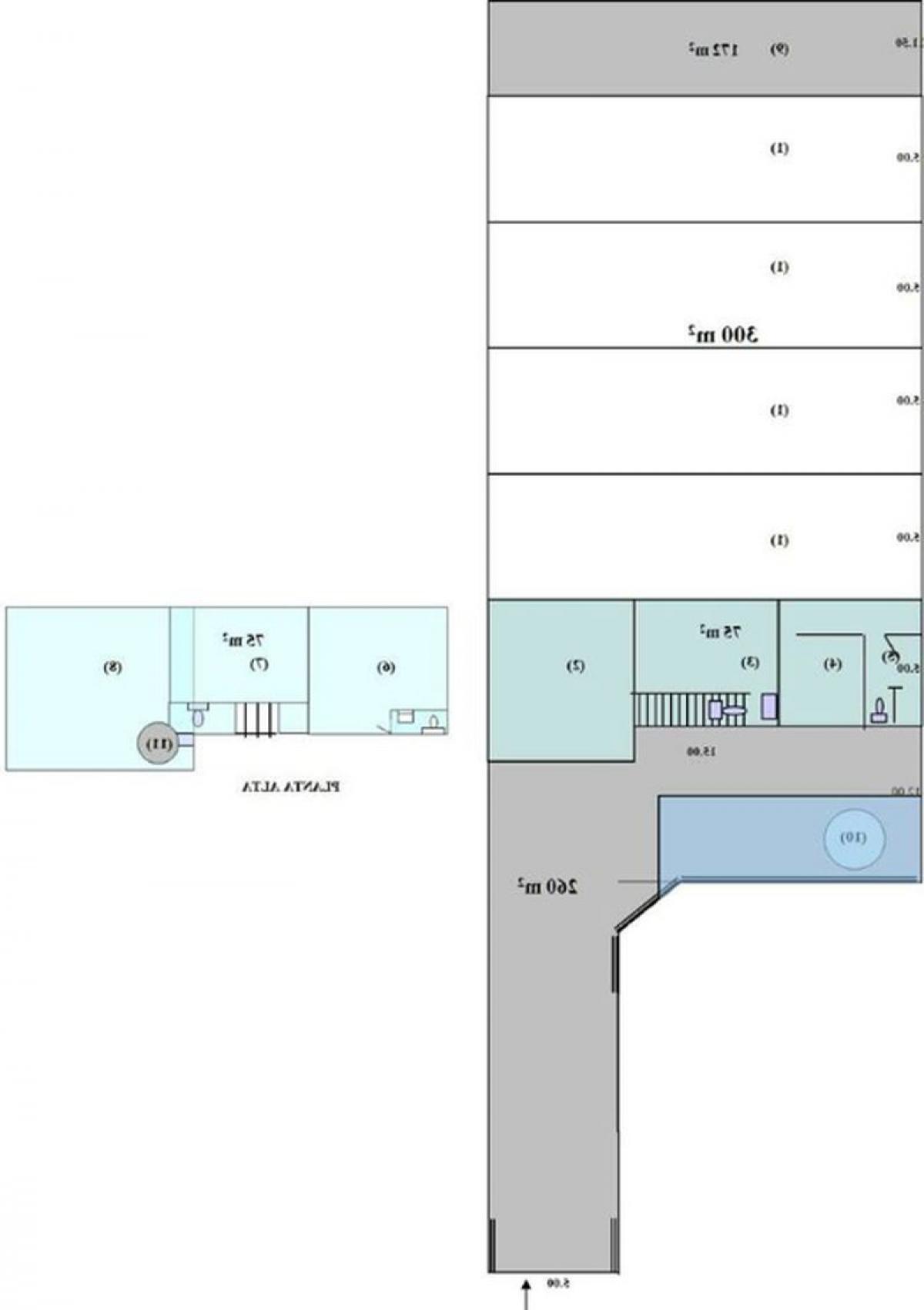
Area del predio: 860m2
Area de construccion: 935m2
Area de oficinas: 120m2
Area de bodega techada: 300m2
Patio de almacenaje: 180m2
Area de estacionamiento: 260m2
En la pedazo de abajo de las oficinas se encuentra un bano completo para trabajadores y en el segundo nivel de oficinas, 2 banos.
Material de construccion: Concreto
Instalacion electrica: Trifasica
Tiene sector de maniobras.
La altura de la bodega techada es de 10 mts
Tiene iluminacion, cisterna, anden para trailer, caseta de vigilancia,
area de carga y descarga, agua, muy cerca de el Boulevard
Adolfo Ruiz Cortinez.
Info.
WH 993-316-96-57
Codigo Postal: 86108 Banos: 3 Superficie Habitable: 935 Superficie Total: 860














