Residential Land For Sale
$795,000
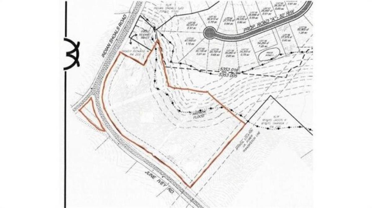
3601 Indian Shoals Rd SE
Bethlehem, Georgia, United States
Listed By: Realtyww Info
Listed On: 08/18/2024
Listing ID: GL11566515 View More Details
Description
Discover Your Private Retreat: 16 Wooded Acres on Indian Shoals Road, Bethlehem, GA. Escape to Nature: Nestled in eastern Gwinnett County, this 16-acre parcel of wooded land offers unparalleled privacy and natural beauty. Imagine your dream home surrounded by mature trees, with plenty of space to create your own sanctuary. Creek with waterfall. You'll enjoy the tranquility of rural living while being just a short drive from local amenities and major roadways. The property is perfectly situated for those who desire peace and privacy without sacrificing convenience. Build Your Dream Home: Take advantage of this unique opportunity to create a custom retreat tailored to your lifestyle. With no restrictions on the type of home you can build, you have the freedom to design your ideal residence in a secluded setting. The Estate that owns this property has decided to carve out +/- 16 acres that border Indian Shoals Road and June Ivey Road totaling approximately 1500 feet of road frontage. A new survey will be provided by the sellers.For more details:
Listed by: David Shockley




