Residential Land For Sale
$635,000
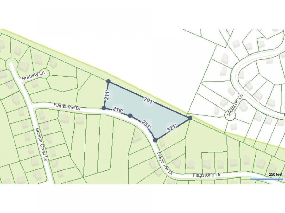
6601 Flagstone Drive
Ooltewah, Tennessee, United States
3 acres
Listed By: Homes & Land Magazine
Listed On: 05/08/2025
Listing ID: GL12068128 View More Details
Description
Discover a rare 2.78-acre lot (121,096 sq ft), comprising lots 302 and 303 on Flagstone Dr in Ooltewah, listed at $635,000. Ideal for buyers, builders, or investors, this expansive parcel offers a unique opportunity to create your dream home. Set in a tranquil neighborhood with optional HOA membership, this lot features a seasonal creek that flows during rainy months, adding natural charm to your future homesite. Build near the left boundary for enhanced privacy, with ample space for a custom estate. The gently sloped, build-ready terrain is perfect for your vision. Just minutes from Ooltewah#039;s dining, shops, banks, and Highway 11, it blends suburban serenity with everyday convenience. Contact Blanca Erazo at Keller Williams Realty, 423-551-2426, to schedule a viewing or request details. Don#039;t miss this chance to own nearly 3 acres in Ooltewah#039;s thriving Flagstone community, where nature and convenience meetmdash;act now!






















