Residential Land For Sale
120,000
Anageia
Anageia, Other, Cyprus
633 sqm
Year Built: 0
Listed By: Bezino Trading Ltd
Listed On: 12/03/2024
Listing ID: GL11989355 View More Details
Description
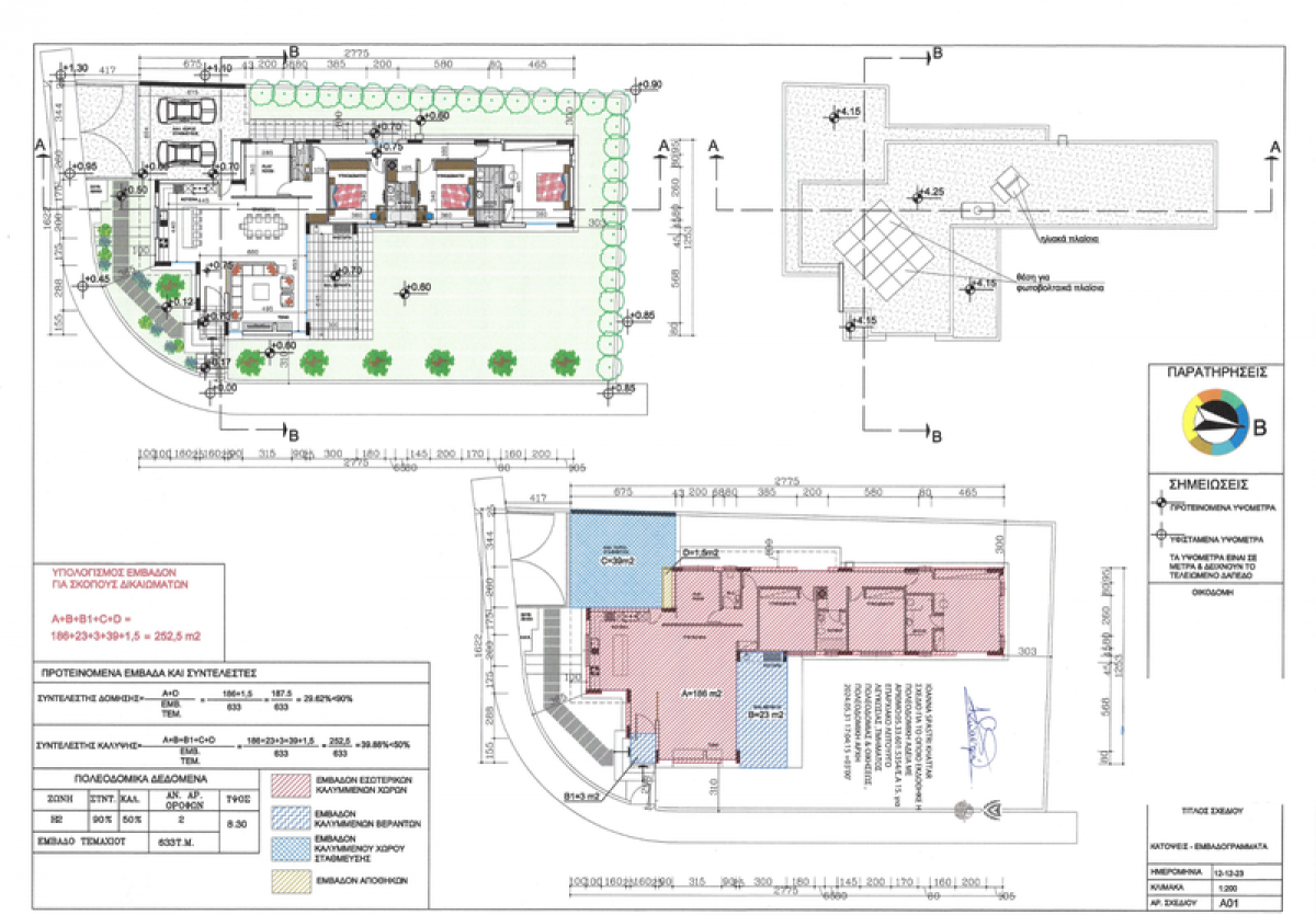
633τ.μ. στην περιοχή Ανάγεια στη Λευκωσία.Το τεμάχιο εμπίπτει στην Οικιστική Πολεοδομική Ζώνη Η02 με συντελεστή δόμησης 90% και συντελεστή κάλυψης 50%, 2 ορόφους και μέγιστο ύψος 8.30μ.
Εκδόθηκε Πολεοδομική Άδεια για ισόγειο κατοικία (βλέπε επισυναπτομένες φωτογραφίες) με εσωτερικούς χώρους 186τ.μ., ενώ βρίσκεται σε κατάσταση μελέτης η Άδεια Οικοδομής η οποία έγκριση ανάμενεται εντός των επόμενων ημερών. (υπάρχουν έτοιμα τα Αρχιτεκτονικά Σχέδια και όλες οι μελέτες, οπως, Στατικά, Ηλεκτρολογικά, Μηχανολογικά, Ενεργειακή Απόδοση)
Το οικόπεδο είναι έτοιμο για Οικοδομικές εργασίες.
Το παρόν τεμάχιο δεν υπόκειται σε ΦΠΑ.
Για περισσότερες πληροφορίες όσο αφορά το τεμάχιο/σχέδια/λεπτομέρειες κτλ, εποικοινωνήστε εδώ.
Share: No
Density: 0.9
Coverage: 0.5
Land type: Plot
Plot area: 633 m2
Plot Type: Residential
Postal code: 2640
Parcel number: 817
Planning zone: Η02
Online viewing: Yes
Square meter price: €190 /m2:


















