Residential Land For Sale
375,000
Santa Bárbara de Nexe
Santa Barbara De Nexe, Faro, Portugal
1,347 sqm
Year Built: 0
Listed By: Gatehouse Int. Med. Imo. Lda.
Listed On: 08/15/2024
Listing ID: GL11169478 View More Details
Description
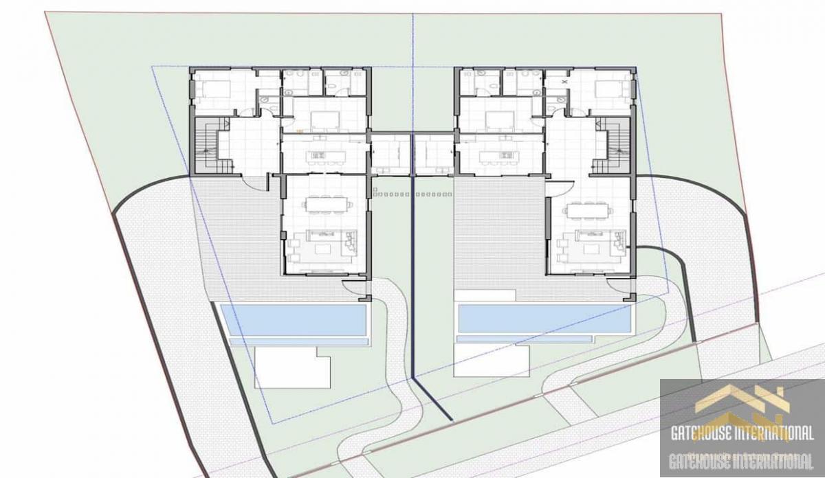
Building Plot For 2 Linked Villas in Santa Barbara de Nexe Algarve is a 1347m2 plot with a project for 2 luxurious villas with a full Planning and implementation Permission (PiP) and sea views. The total build area is 485m2 and each villa has a living and dining room, fitted and equipped kitchen, 4 bedrooms, 4 bathrooms all en suites, terraces and a swimming pool. Plot: - 1347m2 Build area: - 485m2 Project: 2 villas each having: - 4 bedrooms - 4 bathrooms - living and dining room - fitted kitchen - terraces - swimming pool Santa Barbara de Nexe is a small and quiet village with excellent views from a height of about 370 m down to the lowlands between the city of Faro, Olhao, the Ria Formosa and the Atlantic Ocean. The main attraction is the igreja Matriz, the gothic church, which is located above the main road. The church from the 15th century, contains the typical elements of the Manueline style: stone-carved decorations such as ropes, nets and corals on the ceiling and pillars as well as beautiful old Azulejos. The village is located within approximately 20 20-minute drive from the beaches, 7 minutes from the Mar Shopping Centre & Outlet and 25 minutes from Faro international Airport.Features
* Country Views























