Villa For Sale
310,000
Las Palas
Las Palas, Other, Spain
3bd 2ba
Year Built: 0
Listed By: White Coast Realty
Listed On: 11/10/2025
Listing ID: GL12083452 View More Details
Description
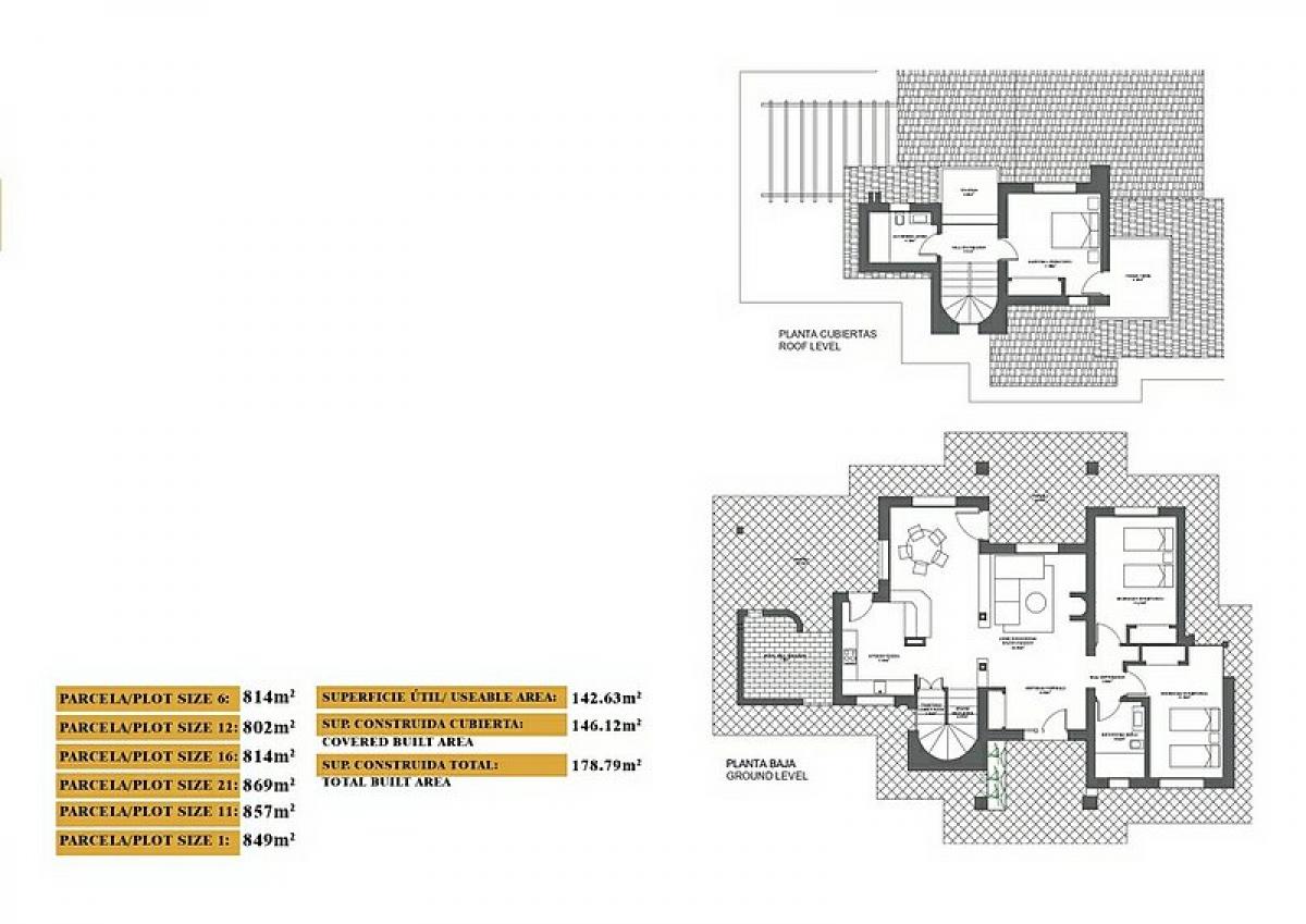
KEY READY. Situated in one of the most beautiful areas of Murcia. Countryside villas in a private gated complex with all amenities close by. 30 minutes to Murcia airport. 20 minutes to Hacienda del Alamo golf resort. 40 minutes to La Manga club. 20 minutes to Mazarron beaches.Substantial villas build of 178m2 and large 850m2 plot.
Distributed over two floors, the Olivo has two bedrooms and one bathroom on the ground floor and a bedroom, bathroom and two solariums on the top floor. It also has the biggest living room of all the homes, a total of 30.86m2
Type: New Build and Key Ready
Status: Murcia
Price: 310,000€
Location: Las Palas
Type: Detached Villa
Living Areas:
Beds: 3
Baths: 2
Floor Area:
Plot Area: New Builds












