Villa For Sale
3,300,000
Mouttagiaka
Mouttagiaka, Limassol, Cyprus
5bd 3ba 469 sqm
Year Built: 0
Listed By: Bezino Trading Ltd
Listed On: 12/02/2024
Listing ID: GL11977850 View More Details
Description
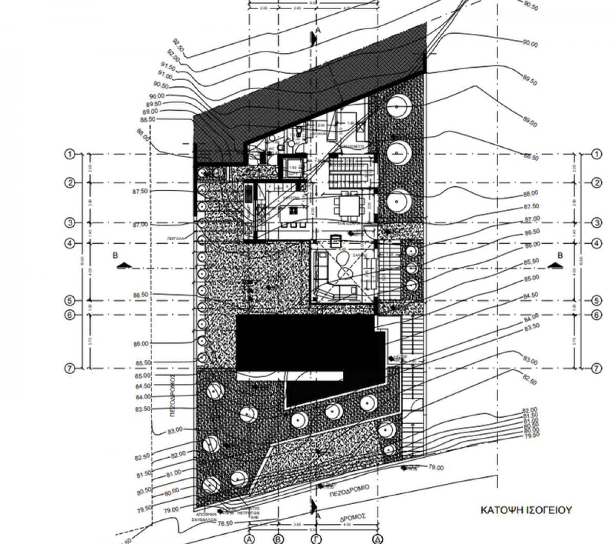
A complex of three luxury villas with exceptional architecture, interior design and construction. Architectural simplicity and complex construction solutions, individual design. The key architectural idea is a stunning sea view from every room of the villa and an infinity cascading pool, as well as all the latest technologies, including the smart home system. The plot is 469m2. Floors 2+2, covered verandas 30 m2, covered parking (included on the 2nd floor) 70 m2. The total covered area is 508 m2, outdoor veranda: 65 m2, swimming pool 33 m2, roof garden: 23 m2. Laundry, maid's office, Covered parking, storage room, wine cellar. Office and library. Roof garden and infinity pool, elevator.Reference number: 81299
Property area: 469 m2
Type: Villa
Parking: Covered
Condition: Resale
Furnishing: Unfurnished
Postal code: 4102
Online viewing: Yes
Air conditioning: Full, all rooms
Energy Efficiency: A
Bedrooms: 5
Square meter price: €7.036 /m2
Bathrooms: 3:




















