Villa For Sale
890,000
Tombs Of The Kings
Tombs Of The Kings, Paphos, Cyprus
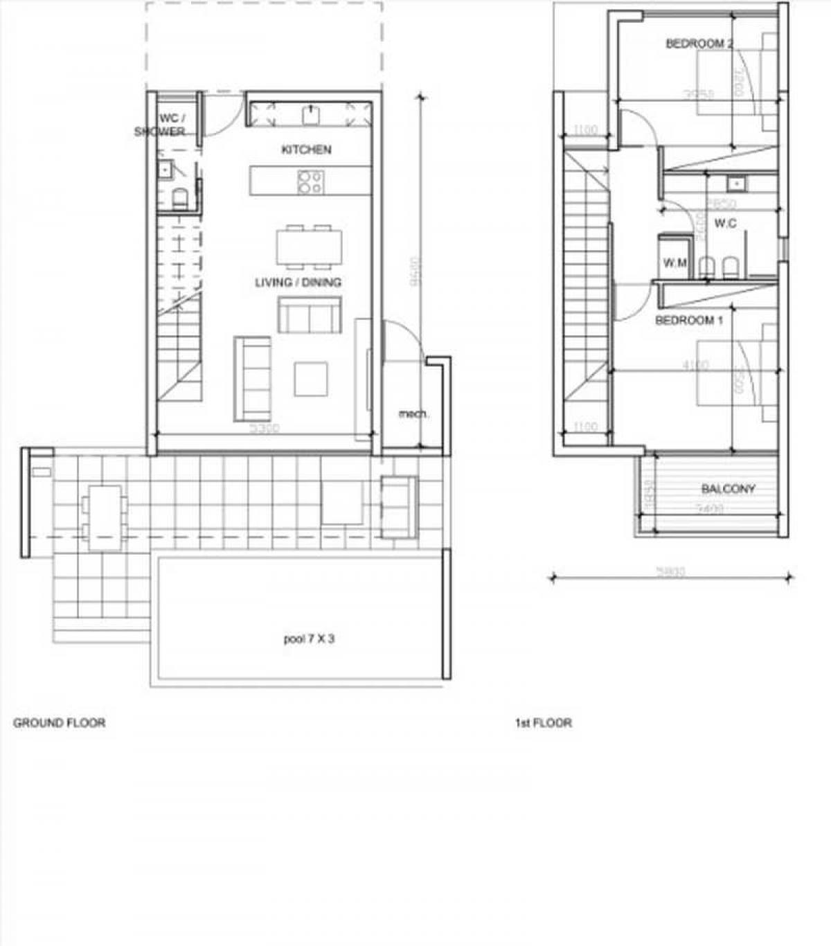
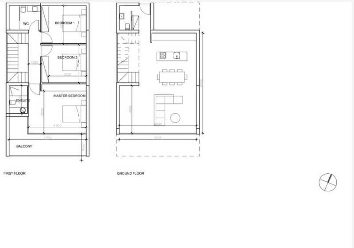
3bd 2ba 180 sqm
Year Built: 0
Listed By: Bezino Trading Ltd
Listed On: 12/02/2024
Listing ID: GL11980075 View More Details
Description
Under construction 3 bedroom villa in a few steps from the beach in Paphos.This villa is a part of a luxury development which is situated along the coastline of the historic Lighthouse. Overlooking the coastline, the site is within close proximity to amenities and services.
Delivery date-
Price+VAT
Amenities:
Bathrooms - 2+1
Concealed A/C Units
BBQ Area
CCTV Provision
Double Glazing Thermal Aluminum
Double Parking Area
Underfloor Heating
Infinity Pool
Net Metering System
Paphos offers a variety of cultural, entertainment and leisure facilities in less than 5km to its city center from the site. The old harbor, the castle of Paphos, the various ancient sites like Tomb of Kings and the ancient mosaics are a popular destination both for locals and tourists that can be combined with leisure activities along the coast. The Mediterranean weather in combination with the beautiful natural landscape of the area, is a perfect combination which transforms this development into a relaxing yet luxurious homes, enjoying the benefits of its prime location.
Reference number: KUHOBLU8
Property area: 180 m2
Type: Villa
Condition: Under construction
Energy Efficiency: N/A
Bedrooms: 3
Square meter price: €4.944 /m2
Bathrooms: 2:



















